Restructuration d’un appartement – Paris (75)
Maîtrise d’ouvrage / Privée
Maîtrise d’oeuvre / Atelier alt R Architecture
Programme / Restructuration d’un appartement
Surface plancher / 27 m²
Date / 2016
Coût / NC
Mission / ESQ > suivi de chantier (achevé en mai 2016)
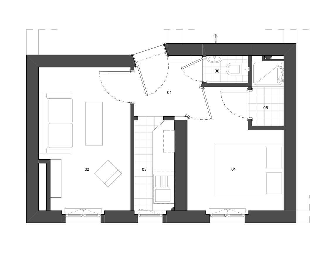
Pour la restructuration de cet appartement de deux pièces, les espaces ont été redistribués selon les points d’eau et ouvertures existantes.
Les espaces d’entrée, cuisine et séjour ont été mutualisés afin de distribuer dans la pièce de vie principale un maximum de luminosité naturelle.
Le choix d’un découpage particulier des sols a été réalisé dans l’objectif de ne pas rescinder les espaces et ainsi d’adoucir les transitions entre chacun.
Les teintes claires des matériaux ont été définis en conséquence, lumineux et chaleureux grâce aux discrètes touches boisées.
L’électricité, la plomberie, le système de ventilation ainsi que les revêtements ont été repris en totalité.










