Restructuration d’un appartement – Paris (75)
Maîtrise d’ouvrage / Privée
Maîtrise d’oeuvre / Atelier alt R Architecture
Programme / Restructuration d’un appartement
Surface plancher / 28 m²
Date / 2016
Coût / NC
Mission / Complète
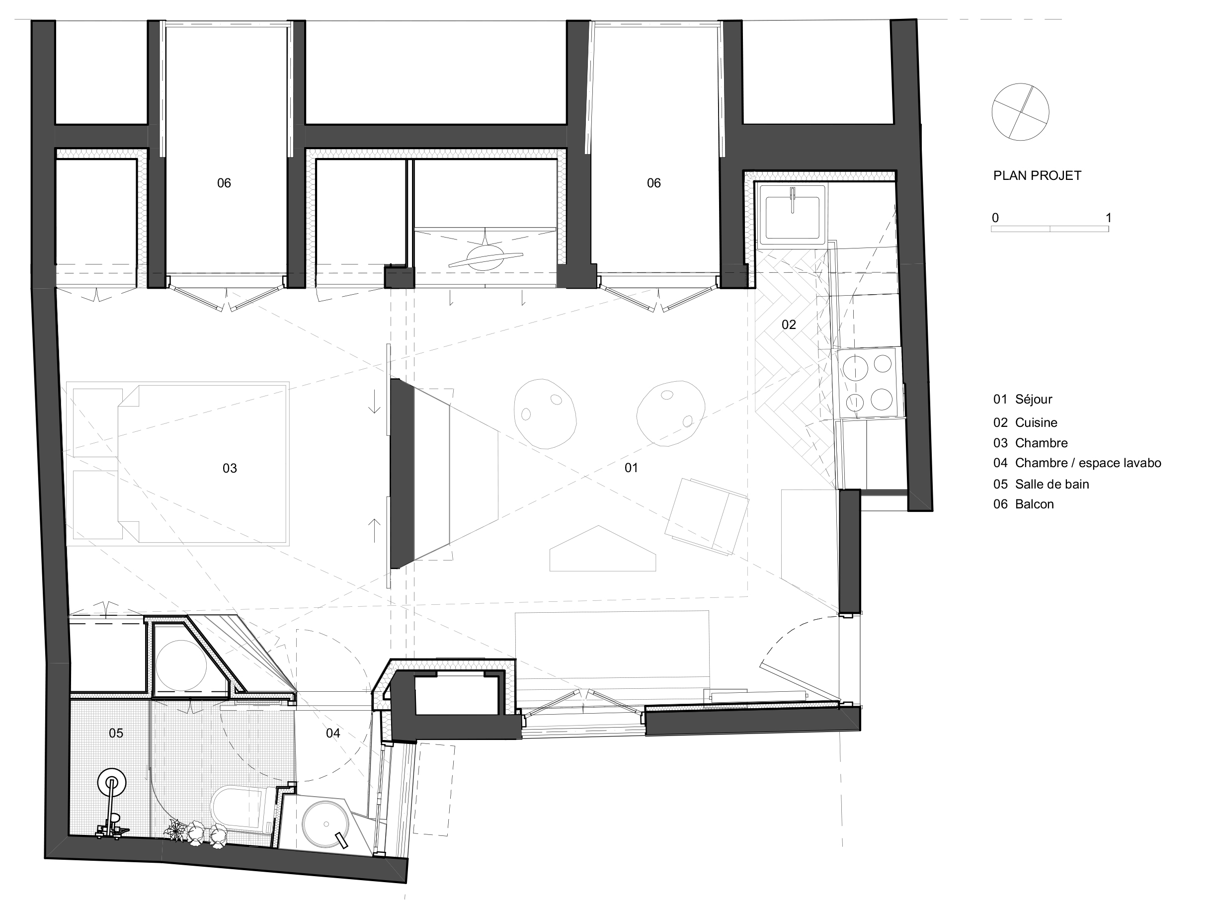
L’appartement de 2.12m sous plafond et très cloisonné a nécessité une restructuration profonde.
Le projet a porté sur l’ouverture des espaces afin de pouvoir le parcourir et proposer une flexibilité d’usage. Les perspectives sur les toits parisiens alentours, dont un point de vue sur les toits de l’Opéra Garnier concourraient à réinventer les axes de vues de l’appartement et à décloisonner en apportant également plus de lumière.
Le comble, bien que de faible hauteur, a été annexé au volume de l’appartement lui donnant une respiration supplémentaire.
Une fois les espaces décloisonnés et les vues restituées, les axes de perspectives ont donné naissance à un volume sculpté pour la salle de bain, espace intime et coloré de bien-être.
Un espace lavabo en continuité de la chambre restitue une deuxième fenêtre à la chambre et peut également être intégré à la salle de bain grâce à une porte dont l’ouverture est à 270°.
Les deux pièces de l’appartement sont réaménagées en un seul espace à parcourir, libéré d’obstacles et pourvu de nombreux rangements minutieusement récupérés sur les espaces perdus des rampants.









